New Listing
$3,650,000
( $487.38Per Sq Foot )
 $19,594 est/mo Sourced by Back At You

1662 & 1664 Dufferin Street,Toronto W03, ON M6H 3M1

Toronto W03, ON M6H 3M1

Share:

Description

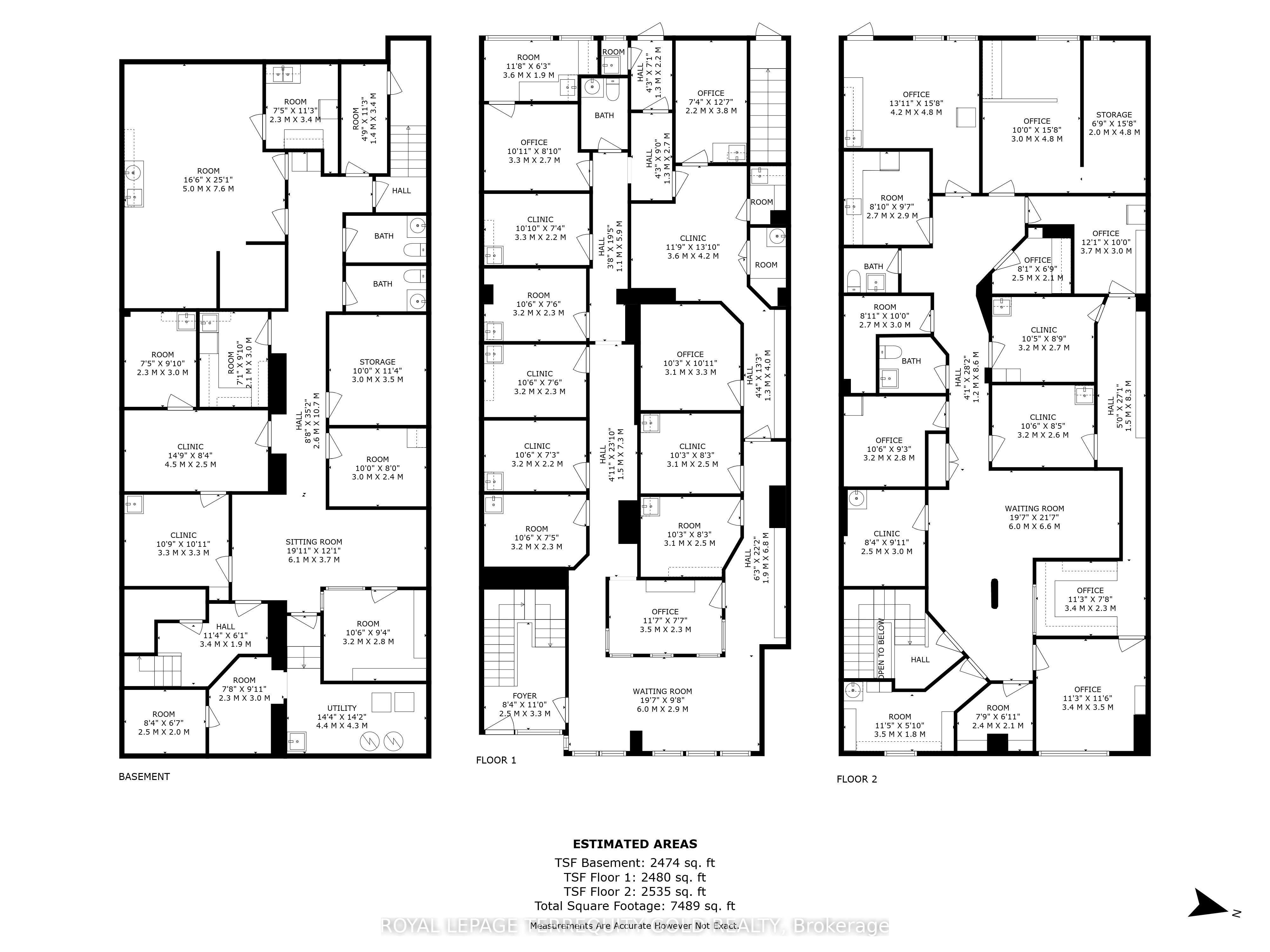
An exceptional opportunity to own a well-maintained commercial building in a high-traffic, high-visibility location. Currently configured as three separate units, each with its own entrance and previously used as medical offices and clinics, this building offers incredible flexibility for a variety of uses. The main floor was formerly a pizza shop, ideal for retailor food service. Each floor is around 2500 square feet (please see floorplans). With 6 dedicated parking spaces at the rear and two furnaces, two hot water tanks, two ACS (allowed - no rental equipment), this property is ready to meet the needs of both investors and end users. The building will be delivered vacant by year-end, allowing for full customization or tenant selection at market rents. Located at the bustling intersection of Dufferin and St Clair, this prime corner offers excellent exposure and easy access for customers, clients, or patients. Whether you're expanding your business, developing a new concept, or seeking a turnkey investment, this property is loaded with potential. Endless possibilities in a strategic location - don't miss out on this rare opportunity

Details

MLS #W12503008
Listing TypeFor Sale
Sub-TypeResale
StatusNew
Year0
Days On Site3
Listing Provided ByROYAL LEPAGE TERREQUITY GOLD REALTY | W12503008 429200

Features

SQ Feet7,489
Acreage0.17

Interior

CoolingYes

Exterior

Security FeaturesYes

Utilities

UtilitiesAvailable
SewerSanitary

Taxes

Tax Annual Amount37039.1
Tax TypeAnnual
Tax Legal DescriptionPT LT 33 PL 1360 TORONTO AS IN CA228241; S/T CA228241; CITY OF TORONTO
Tax Year2025

Area Information

ProvinceON
CountyToronto
CityToronto W03
Postal CodeM6H 3M1
AreaCorso Italia Davenport
Sourced by Back At You

Request a showing

Request a showing

Loading Form
MLS Internet Data Exchange (IDX) information is provided exclusively for consumers’ personal, non-commercial use and may not be used for any purpose other than to identify prospective properties consumers may be interested in purchasing, and that the data is deemed reliable but is not guaranteed accurate by the Toronto Real Estate Board.

Contact

Learn More About This Property

ProvinceON
CountyToronto
CityToronto W03
Postal CodeM6H 3M1
AreaCorso Italia Davenport
Sourced by Back At You
Nearby Listings (Within 1/10 mile)
Price: $2.737M - $4.562M
sqft: 5,500 - 9,000
Listing Updated: November 3, 2025 at 4:04:37 PM PST